Expertise couleur et projet- sur -mesures

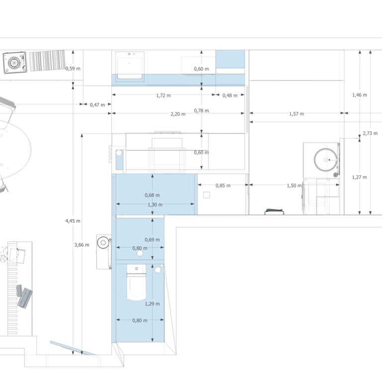
Parisian apartment : Jules Joffrin Paris 18 district

Parisian apartment non functional. The client likes soft colors, wood and scandinavian minimalist with a twist.

1 min read